- 介護付き有料老人ホーム
入居サポート費対象
ニチイホーム 立川柴崎
多摩都市モノレール「柴崎体育館」駅より徒歩2分 リハビリ対応型です。
- 2026年3月11日
- 更新
- 空室
- 1室
他のおすすめの施設もご紹介可能です
- サービス種別
- 介護付き有料老人ホーム
- 費用
- 初期費用
- 50万円〜840万円
- 月額費用
- 21.6万円〜42.9万円
- 住所
- 〒190-0023
東京都立川市柴崎町4-2-23地図
- 交通手段
- 【電車 】 JR中央線・南武線・青梅線「立川」駅南口より徒歩11分(850m) 多摩都市モノレール「柴崎体育館」駅より徒歩2分(130m) 【車】 中央自動車道「国立府中」I.C.より約15分(約5km)
- 要介護度
- 自立、要支援1、要支援2、要介護1、要介護2、要介護3、要介護4、要介護5
- 運営法人
- 株式会社ニチイケアパレス
- 24時間介護士常駐
- 日中看護師常駐
- 夜間有人
- 理学療法士
- 作業療法士
- 体験入居可
- ショートステイ可
- 入居一時金0円
- トイレ付き居室
- 家具付き居室
- 介護ベッド付居室
- 広い居室
- ナースコールあり
- 機械浴・特殊浴あり
- 口腔ケア・訪問歯科あり
- 理美容サービスあり
- 終身利用可
- 個室あり
- 夫婦入居可・2人部屋あり
- 手厚い人員体制
- リハビリ体制あり
- レクリエーション充実
- 駅近・交通アクセス良好
- 大手が運営
- 空室あり
- 施設内手作りの食事
- オンライン見学可
- 自立可
看護・医療体制
医療面の受け入れ
- 経管栄養法
受け入れ可
- 膀胱留置カテーテル
受け入れ可
- 腎ろう・膀胱ろう
受け入れ可
- 在宅酸素療法
受け入れ可
- 人工呼吸療法
要相談
- 人工肛門
受け入れ可
- 人工膀胱
受け入れ可
- 吸引
受け入れ可
介護面の受け入れ
- 介護食
受け入れ可
- 流動食・嚥下食
受け入れ可
- リハビリ
受け入れ可
- 糖尿病・インスリン
受け入れ可
- 褥瘡・床ずれ
受け入れ可
- 人工透析
受け入れ可
- カテーテル・尿バルーン
受け入れ可
- ペースメーカー
受け入れ可
- 誤嚥性肺炎
受け入れ可
- 喘息・気管支炎
受け入れ可
- アルツハイマー
受け入れ可
- 脳血管性認知症
受け入れ可
- ピック病
受け入れ可
- レビー小体型認知症
受け入れ可
- パーキンソン病
受け入れ可
- 廃用症候群
受け入れ可
- うつ・鬱病
受け入れ可
- 統合失調症
受け入れ可
- リウマチ・関節症
受け入れ可
- 骨折・骨粗しょう症
受け入れ可
- 脳梗塞・クモ膜下出血
受け入れ可
- 心筋梗塞・狭心症
受け入れ可
- がん・末期癌
受け入れ可
- 人工呼吸器
要相談
- 病態食対応
受け入れ可
感染症面の受け入れ
- HIV
受け入れ可
- MRSA(ブドウ球菌感染症)
受け入れ可
- 肝炎
受け入れ可
- 結核
要相談
- 梅毒
要相談
- 疥癬(かいせん)
要相談
協力医療機関
医療法人社団 康明会 康明会ホームケアクリニック
| 住所 | 〒191-0012 東京都日野市日野1451-1 シルバービレッジ日野クリニックビル 1F |
|---|---|
| 診療科目 | 内科 |
| 協力内容 | 訪問診療、健康指導、医療相談、適正な医療機関への紹介 |
医療法人元気会 わかさクリニック府中
| 住所 | 〒183-0022 東京都府中市宮西町5丁目8-1 |
|---|---|
| 診療科目 | 内科、外科、皮膚科、総合診療 |
| 協力内容 | 訪問診療、健康指導、医療相談、適正な医療機関への紹介 |
歯科島津医院
| 住所 | 〒190-0021 東京都立川市羽衣町2-44-25 サワイビル1F |
|---|---|
| 診療科目 | 歯科 |
| 協力内容 | 訪問診療 |
料金プラン・入居条件
居室Ⅰ【月払いプラン】
- 初期費用
- 500,000円
- 月額費用
- 円
- 居室タイプ
- 個室
- 契約方式
- 利用権方式
居室Ⅰ【標準プラン】
- 初期費用
- 6,900,000円
- 月額費用
- 円
- 居室タイプ
- 個室
- 契約方式
- 利用権方式
居室Ⅱ(夫婦室)【月払いプラン】
- 初期費用
- 750,000円
- 月額費用
- 円
- 居室タイプ
- 個室
居室Ⅱ(夫婦室)【標準プラン】
- 初期費用
- 8,400,000円
- 月額費用
- 円
- 居室タイプ
- 個室
- 契約方式
- 利用権方式
在宅介護サービス費の負担限度額(月額)
| 1割負担 | 2割負担 | 3割負担 | |
|---|---|---|---|
| 要支援1 | 6,647円 | ー | ー |
| 要支援2 | 11,283円 | ー | ー |
| 要介護1 | 19,772円 | ー | ー |
| 要介護2 | 22,162円 | ー | ー |
| 要介護3 | 24,659円 | ー | ー |
| 要介護4 | 26,976円 | ー | ー |
| 要介護5 | 29,438円 | ー | ー |
※上記は金額の目安であり、利用サービスによって変わる場合があります。詳細は各施設にお問い合わせのうえ、必ずご確認ください。
入居条件
| 要介護度 | 自立、要支援1、要支援2、要介護1、要介護2、要介護3、要介護4、要介護5 |
|---|---|
| 認知症 | 受け入れ可 |
| 生活保護 | 不可 |
| 身元保証人なし | 要相談 |
| 入居年齢相談可 | 要相談 |
短期・体験利用
| 体験入居 | 1泊11,000円(うち消費税等1,000円)で最大7泊まで体験入居を承っております。 家賃・管理費・食費・介護費が含まれます。 介護保険の給付対象外サービスのため全額自己負担によるご利用となります。 ご利用者個人のおむつ代、医療費、嗜好品購入費などは含まれておりません。 |
|---|
ニチイホーム 立川柴崎
資料請求とは:サイト非公開の正確な料金体系と空き状況を紙資料でじっくり確認できます。家族との比較検討に最適です。
見学申込とは:資料では分からない施設の雰囲気や職員の対応を直接確認できます。専門相談員への個別質問も可能です。
外観・内観
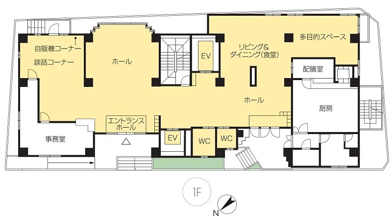
フロアマップ
ニチイホーム 立川柴崎
資料請求とは:サイト非公開の正確な料金体系と空き状況を紙資料でじっくり確認できます。家族との比較検討に最適です。
見学申込とは:資料では分からない施設の雰囲気や職員の対応を直接確認できます。専門相談員への個別質問も可能です。
事業所概要
事業所詳細
| 事業所名称 | ニチイホーム 立川柴崎 |
|---|---|
| サービス種別 | 介護付き有料老人ホーム |
| 定員 | 57名 |
| 敷地面積 | 458.42㎡ |
| 延床面積 | 2140.13㎡ |
| 土地 | 借地権 |
| 建物 | 借地権 |
| 建物構造 | 鉄筋コンクリート造 |
| 地上階 / 地下階 | 7階 /1階 |
| 開設年月日 | 2001年11月20日 |
| 居室設備 | 介護用電動ベッド(寝具付)、ナースコール、車いす対応洗面台、暖房便座機能付トイレ、クローゼット、カウンターデスク、カーテン(レース・ドレープ)、エアコン |
| 共用設備 | エントランスホール、リビング&ダイニング(食堂)※、健康管理室兼ヘルパーステーション、一般浴室(車いす対応リフト付)、特別浴室、個人浴室、テラスガーデン、化粧室、駐車場 ※エントランスホール、リビング&ダイニング(食堂)※1、健康管理室兼ヘルパーステーション、一般浴室(車いす対応リフト付)、特別浴室、個人浴室、テラスガーデン、化粧室、駐車場 |
会社概要
| 法人名称 | 株式会社ニチイケアパレス |
|---|---|
| 法人名称(フリガナ) | ニチイケアパレス |
| 法人住所 | 〒101-0062 東京都千代田区神田駿河台4丁目6番地 |
| 法人設立日 | 1964/06/01 |