- 介護付き有料老人ホーム
入居サポート費対象
ニチイホーム 王禅寺
年払いプラン(年間契約)対応
- 2026年2月26日
- 更新
- 空室
- 1室
他のおすすめの施設もご紹介可能です
- サービス種別
- 介護付き有料老人ホーム
- 費用
- 初期費用
- 50万円〜630万円
- 月額費用
- 18.6万円〜32.1万円
- 住所
- 〒215-0017
神奈川県川崎市麻生区王禅寺西7-19-3地図
- 交通手段
- 【電車】 小田急線「柿生」駅南口より徒歩12分(900m) 【バス】 小田急線「新百合ヶ丘」駅南口より徒歩1分→小田急バスまたは東急バス「新百合ヶ丘駅」9番のりば 「大谷」「あざみ野駅」「嶮山スポーツガーデン」行にて「柿生新橋」下車徒歩3分(200m) 誠に勝手ながらシャトルバスの運行は2月28日をもちまして終了させていただきました。上記公共交通機関をご利用ください。 【車】 東名高速道路「東名川崎」I.C.より約15分(約6.8km)
- 要介護度
- 自立、要支援1、要支援2、要介護1、要介護2、要介護3、要介護4、要介護5
- 運営法人
- 株式会社ニチイケアパレス
- 24時間介護士常駐
- 日中看護師常駐
- 夜間有人
- 作業療法士
- 体験入居可
- ショートステイ可
- 入居一時金0円
- トイレ付き居室
- 家具付き居室
- 介護ベッド付居室
- ナースコールあり
- 機械浴・特殊浴あり
- 口腔ケア・訪問歯科あり
- 理美容サービスあり
- 終身利用可
- 個室あり
- 手厚い人員体制
- リハビリ体制あり
- レクリエーション充実
- 大手が運営
- 空室あり
- 施設内手作りの食事
- オンライン見学可
- 自立可
看護・医療体制
医療面の受け入れ
- 経管栄養法
受け入れ可
- 膀胱留置カテーテル
受け入れ可
- 腎ろう・膀胱ろう
受け入れ可
- 在宅酸素療法
受け入れ可
- 人工呼吸療法
要相談
- 人工肛門
受け入れ可
- 人工膀胱
受け入れ可
- 吸引
受け入れ可
介護面の受け入れ
- 介護食
受け入れ可
- 流動食・嚥下食
受け入れ可
- リハビリ
受け入れ可
- 糖尿病・インスリン
受け入れ可
- 褥瘡・床ずれ
受け入れ可
- 人工透析
受け入れ可
- カテーテル・尿バルーン
受け入れ可
- ペースメーカー
受け入れ可
- 誤嚥性肺炎
受け入れ可
- 喘息・気管支炎
受け入れ可
- アルツハイマー
受け入れ可
- 脳血管性認知症
受け入れ可
- ピック病
受け入れ可
- レビー小体型認知症
受け入れ可
- パーキンソン病
受け入れ可
- 廃用症候群
受け入れ可
- うつ・鬱病
受け入れ可
- 統合失調症
受け入れ可
- リウマチ・関節症
受け入れ可
- 骨折・骨粗しょう症
受け入れ可
- 脳梗塞・クモ膜下出血
受け入れ可
- 心筋梗塞・狭心症
受け入れ可
- がん・末期癌
受け入れ可
- 人工呼吸器
要相談
- 病態食対応
受け入れ可
感染症面の受け入れ
- HIV
受け入れ可
- MRSA(ブドウ球菌感染症)
受け入れ可
- 肝炎
受け入れ可
- 結核
要相談
- 梅毒
要相談
- 疥癬(かいせん)
要相談
協力医療機関
医療法人社団 平郁会 みんなの荏田クリニック
| 住所 | 〒224-0007 神奈川県横浜市都筑区荏田南3丁目29番21号2階 |
|---|---|
| 診療科目 | 内科、老年精神科、皮膚科、眼科、神経内科、人工透析内科 |
| 協力内容 | 訪問診療、健康指導、医療相談、適正な医療機関への紹介 |
医療法人桜樹会 カオス歯科
| 住所 | 〒252-0303 神奈川県相模原市南区相模大野5-13-15 |
|---|---|
| 診療科目 | 歯科 |
| 協力内容 | 訪問診療 |
料金プラン・入居条件
月払いプラン
- 初期費用
- 500,000円
- 月額費用
- 円
- 居室タイプ
- 個室
- 契約方式
- 利用権方式
標準プラン
- 初期費用
- 6,300,000円
- 月額費用
- 円
- 居室タイプ
- 個室
- 契約方式
- 利用権方式
年払いプラン
- 初期費用
- 780,000円
- 月額費用
- 円
- 居室タイプ
- 個室
- 契約方式
- 利用権方式
在宅介護サービス費の負担限度額(月額)
| 1割負担 | 2割負担 | 3割負担 | |
|---|---|---|---|
| 要支援1 | 6,760円 | ー | ー |
| 要支援2 | 11,476円 | ー | ー |
| 要介護1 | 20,110円 | ー | ー |
| 要介護2 | 22,540円 | ー | ー |
| 要介護3 | 25,080円 | ー | ー |
| 要介護4 | 27,437円 | ー | ー |
| 要介護5 | 29,940円 | ー | ー |
※上記は金額の目安であり、利用サービスによって変わる場合があります。詳細は各施設にお問い合わせのうえ、必ずご確認ください。
入居条件
| 要介護度 | 自立、要支援1、要支援2、要介護1、要介護2、要介護3、要介護4、要介護5 |
|---|---|
| 認知症 | 受け入れ可 |
| 生活保護 | 要相談 |
| 身元保証人なし | 要相談 |
| 入居年齢相談可 | 要相談 |
短期・体験利用
| 体験入居 | 1泊11,000円(うち消費税等1,000円)で最大7泊まで体験入居を承っております。 家賃・管理費・食費・介護費が含まれます。 介護保険の給付対象外サービスのため全額自己負担によるご利用となります。 ご利用者個人のおむつ代、医療費、嗜好品購入費などは含まれておりません。 |
|---|
ニチイホーム 王禅寺
資料請求とは:サイト非公開の正確な料金体系と空き状況を紙資料でじっくり確認できます。家族との比較検討に最適です。
見学申込とは:資料では分からない施設の雰囲気や職員の対応を直接確認できます。専門相談員への個別質問も可能です。
外観・内観
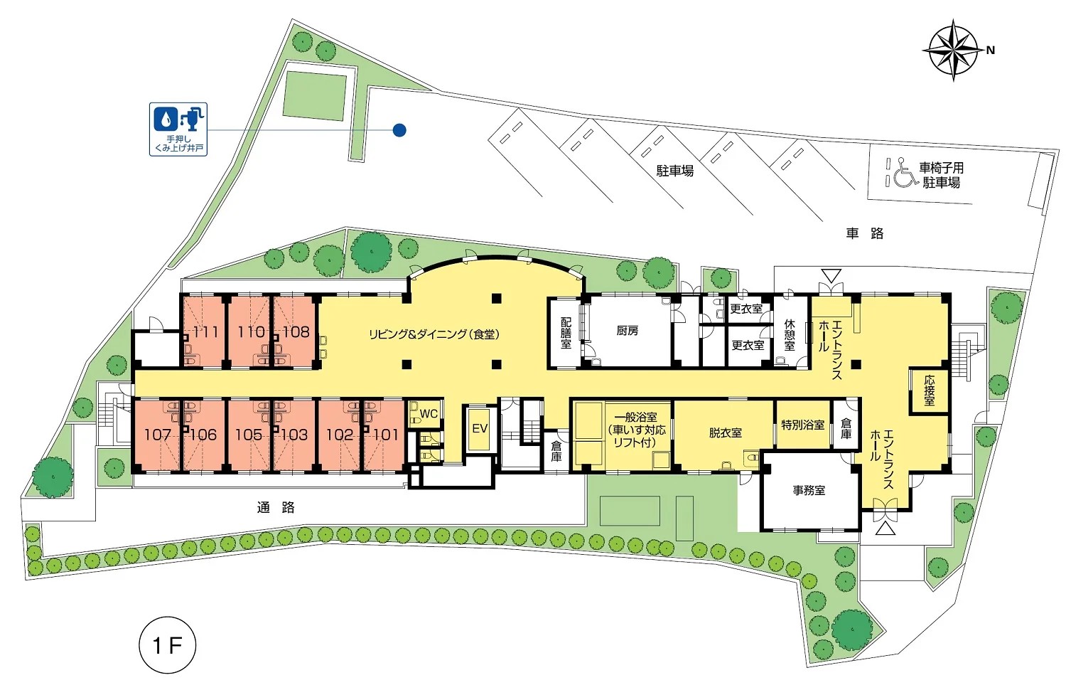
フロアマップ
ニチイホーム 王禅寺
資料請求とは:サイト非公開の正確な料金体系と空き状況を紙資料でじっくり確認できます。家族との比較検討に最適です。
見学申込とは:資料では分からない施設の雰囲気や職員の対応を直接確認できます。専門相談員への個別質問も可能です。
事業所概要
事業所詳細
| 事業所名称 | ニチイホーム 王禅寺 |
|---|---|
| サービス種別 | 介護付き有料老人ホーム |
| 定員 | 62名 |
| 敷地面積 | 1832.97㎡ |
| 延床面積 | 2019.91㎡ |
| 土地 | 借地権 |
| 建物 | 借地権 |
| 建物構造 | 鉄筋コンクリート造 |
| 開設年月日 | 2004年10月16日 |
| 居室設備 | 介護用電動ベッド(寝具付)、ナースコール、車いす対応洗面台、暖房便座機能付トイレ、クローゼット、カウンターデスク、カーテン(レース・ドレープ)、エアコン |
| 共用設備 | エントランスホール、リビング&ダイニング(食堂)※、応接室、健康管理室兼ヘルパーステーション、一般浴室(車いす対応リフト付)、特別浴室、個人浴室、テラスガーデン、化粧室、駐車場 ※食事だけでなくイベント・レクリエーション・機能訓練等、日常生活上多目的に使用。 |
会社概要
| 法人名称 | 株式会社ニチイケアパレス |
|---|---|
| 法人名称(フリガナ) | ニチイケアパレス |
| 法人住所 | 〒101-0062 東京都千代田区神田駿河台4丁目6番地 |
| 法人設立日 | 1964/06/01 |