- 介護付き有料老人ホーム
入居サポート費対象
ニチイホーム 住吉
下町の風情を残しながら、生活便利な近隣施設が豊富
- 2026年3月11日
- 更新
- 空室
- 1室
他のおすすめの施設もご紹介可能です
- サービス種別
- 介護付き有料老人ホーム
- 費用
- 初期費用
- 50万円〜1680万円
- 月額費用
- 23.6万円〜71.9万円
- 住所
- 〒136-0073
東京都江東区北砂1-10-1地図
- 交通手段
- 【電車】 ・東京メトロ半蔵門線・都営新宿線「住吉」駅B1出入口より徒歩17分(1.3km) ・東京メトロ東西線「東陽町」駅A1出入口より徒歩22分(1.7km) 【バス】 ・JR総武線・東京メトロ半蔵門線「錦糸町」駅南口→都営バス「錦糸町駅」バス停2番のりばより「門前仲町(都07)」行にて「北砂三丁目」下車徒歩6分(430m) ・東京メトロ半蔵門線・都営新宿線「住吉」駅A3出口→都営バス「住吉駅前」バス停3番のりばより「東京駅丸の内北口(東22)」行にて「千田」下車徒歩10分(800m) ・JR「秋葉原」駅中央改札口→都営バス「秋葉原駅前」バス停2番のりばより「葛西駅前(秋26)」行にて「北砂一丁目」下車徒歩2分(160m) 【車】 ・首都高速7号小松川線「錦糸町」I.C.より約7分(約1.9km) ・首都高速9号深川線「木場」I.C.より約8分(約2.5km)
- 要介護度
- 自立、要支援1、要支援2、要介護1、要介護2、要介護3、要介護4、要介護5
- 運営法人
- 株式会社ニチイケアパレス
- 24時間介護士常駐
- 日中看護師常駐
- 夜間有人
- 作業療法士
- 体験入居可
- ショートステイ可
- 入居一時金0円
- トイレ付き居室
- 家具付き居室
- 介護ベッド付居室
- 広い居室
- ナースコールあり
- 機械浴・特殊浴あり
- 口腔ケア・訪問歯科あり
- 理美容サービスあり
- 終身利用可
- 個室あり
- 夫婦入居可・2人部屋あり
- 手厚い人員体制
- リハビリ体制あり
- レクリエーション充実
- 大手が運営
- 空室あり
- 施設内手作りの食事
- オンライン見学可
- 自立可
看護・医療体制
医療面の受け入れ
- 経管栄養法
受け入れ可
- 膀胱留置カテーテル
受け入れ可
- 腎ろう・膀胱ろう
受け入れ可
- 在宅酸素療法
受け入れ可
- 人工呼吸療法
要相談
- 人工肛門
受け入れ可
- 人工膀胱
受け入れ可
- 吸引
受け入れ可
介護面の受け入れ
- 介護食
受け入れ可
- 流動食・嚥下食
受け入れ可
- リハビリ
受け入れ可
- 糖尿病・インスリン
受け入れ可
- 褥瘡・床ずれ
受け入れ可
- 人工透析
受け入れ可
- カテーテル・尿バルーン
受け入れ可
- ペースメーカー
受け入れ可
- 誤嚥性肺炎
要相談
- 喘息・気管支炎
受け入れ可
- アルツハイマー
受け入れ可
- 脳血管性認知症
受け入れ可
- ピック病
受け入れ可
- レビー小体型認知症
受け入れ可
- パーキンソン病
受け入れ可
- 廃用症候群
受け入れ可
- うつ・鬱病
受け入れ可
- 統合失調症
受け入れ可
- リウマチ・関節症
受け入れ可
- 骨折・骨粗しょう症
受け入れ可
- 脳梗塞・クモ膜下出血
受け入れ可
- 心筋梗塞・狭心症
受け入れ可
- がん・末期癌
受け入れ可
- 人工呼吸器
要相談
- 病態食対応
受け入れ可
感染症面の受け入れ
- HIV
受け入れ可
- MRSA(ブドウ球菌感染症)
受け入れ可
- 肝炎
受け入れ可
- 結核
要相談
- 梅毒
要相談
- 疥癬(かいせん)
要相談
協力医療機関
医療法人社団 平郁会 日本橋かきがら町クリニック
| 住所 | 〒103-0014 東京都中央区日本橋蛎殻町1-10-4 宮田ビル2階 |
|---|---|
| 診療科目 | 内科、老年精神科、皮膚科、眼科、神経内科 |
| 協力内容 | 訪問診療、健康指導、医療相談、適正な医療機関への紹介 |
医療法人社団さくらライフ さくらライフ錦糸クリニック
| 住所 | 〒130-0012 東京都墨田区太平3-4-7 リヴェラ若草 2F |
|---|---|
| 診療科目 | 内科、心療内科、精神科 |
| 協力内容 | 訪問診療、健康指導、医療相談、適正な医療機関への紹介 |
益戸歯科医院
| 住所 | 〒116-0003 東京都荒川区南千住7-12-12 |
|---|---|
| 診療科目 | 歯科 |
| 協力内容 | 訪問診療、健康指導、医療相談、適正な医療機関への紹介 |
料金プラン・入居条件
居室Ⅰ 月払いプラン
- 初期費用
- 500,000円
- 月額費用
- 円
- 居室タイプ
- 個室
- 契約方式
- 利用権方式
居室Ⅰ 入居金プラン
- 初期費用
- 8,400,000円
- 月額費用
- 円
- 居室タイプ
- 個室
- 契約方式
- 利用権方式
居室Ⅱ(夫婦室)月払いプラン
- 初期費用
- 750,000円
- 月額費用
- 円
- 契約方式
- 利用権方式
居室Ⅱ(夫婦室)入居金プラン
- 初期費用
- 16,800,000円
- 月額費用
- 円
- 契約方式
- 利用権方式
在宅介護サービス費の負担限度額(月額)
| 1割負担 | 2割負担 | 3割負担 | |
|---|---|---|---|
| 要支援1 | 6,874円 | ー | ー |
| 要支援2 | 11,669円 | ー | ー |
| 要介護1 | 20,448円 | ー | ー |
| 要介護2 | 22,919円 | ー | ー |
| 要介護3 | 25,501円 | ー | ー |
| 要介護4 | 27,898円 | ー | ー |
| 要介護5 | 30,443円 | ー | ー |
※上記は金額の目安であり、利用サービスによって変わる場合があります。詳細は各施設にお問い合わせのうえ、必ずご確認ください。
入居条件
| 要介護度 | 自立、要支援1、要支援2、要介護1、要介護2、要介護3、要介護4、要介護5 |
|---|---|
| 認知症 | 受け入れ可 |
| 生活保護 | 不可 |
| 身元保証人なし | 要相談 |
| 入居年齢相談可 | 受け入れ可 |
短期・体験利用
| 体験入居 | 1泊11,000円(うち消費税等800円)で最大7泊まで体験入居を承っております。 ・家賃・管理費・食費・介護費が含まれます。 ・介護保険の給付対象外サービスのため全額自己負担によるご利用となります。 ・ご利用者個人のおむつ代、医療費、嗜好品購入費などは含まれておりません。 |
|---|
ニチイホーム 住吉
資料請求とは:サイト非公開の正確な料金体系と空き状況を紙資料でじっくり確認できます。家族との比較検討に最適です。
見学申込とは:資料では分からない施設の雰囲気や職員の対応を直接確認できます。専門相談員への個別質問も可能です。
外観・内観
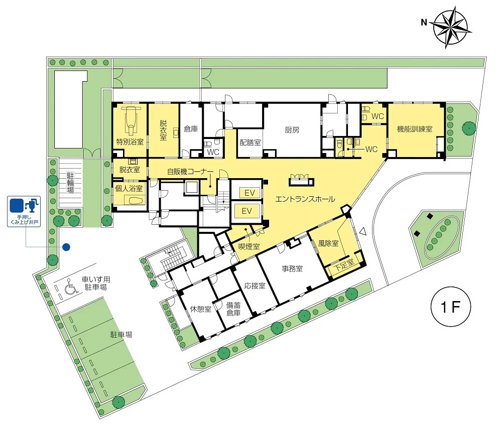
フロアマップ
ニチイホーム 住吉
資料請求とは:サイト非公開の正確な料金体系と空き状況を紙資料でじっくり確認できます。家族との比較検討に最適です。
見学申込とは:資料では分からない施設の雰囲気や職員の対応を直接確認できます。専門相談員への個別質問も可能です。
事業所概要
事業所詳細
| 事業所名称 | ニチイホーム 住吉 |
|---|---|
| サービス種別 | 介護付き有料老人ホーム |
| 定員 | 63名 |
| 敷地面積 | 1296.65㎡ |
| 延床面積 | 2877.42㎡ |
| 開設年月日 | 2015年5月1日 |
| 居室設備 | 介護用電動ベッド(寝具付)、ナースコール、車いす対応洗面台、温水洗浄機能付トイレ、チェスト、クローゼット、デスク、メモリーボックス、カーテン(レース・ドレープ)、エアコン |
| 共用設備 | エントランスホール、リビング&ダイニング(食堂)、機能訓練室、個人浴室、特別浴室、ヘルパーステーション、健康管理室、応接室、ファミリールーム、ヘアーサロン(理美容室)、ランドリー、喫煙室、駐車場 |
会社概要
| 法人名称 | 株式会社ニチイケアパレス |
|---|---|
| 法人名称(フリガナ) | ニチイケアパレス |
| 法人住所 | 〒101-0062 東京都千代田区神田駿河台4丁目6番地 |
| 法人設立日 | 1964/06/01 |
アクセス
| 住所 | 〒136-0073 東京都江東区北砂1-10-1 |
|---|---|
| 主な交通手段 | 【電車】 ・東京メトロ半蔵門線・都営新宿線「住吉」駅B1出入口より徒歩17分(1.3km) ・東京メトロ東西線「東陽町」駅A1出入口より徒歩22分(1.7km) 【バス】 ・JR総武線・東京メトロ半蔵門線「錦糸町」駅南口→都営バス「錦糸町駅」バス停2番のりばより「門前仲町(都07)」行にて「北砂三丁目」下車徒歩6分(430m) ・東京メトロ半蔵門線・都営新宿線「住吉」駅A3出口→都営バス「住吉駅前」バス停3番のりばより「東京駅丸の内北口(東22)」行にて「千田」下車徒歩10分(800m) ・JR「秋葉原」駅中央改札口→都営バス「秋葉原駅前」バス停2番のりばより「葛西駅前(秋26)」行にて「北砂一丁目」下車徒歩2分(160m) 【車】 ・首都高速7号小松川線「錦糸町」I.C.より約7分(約1.9km) ・首都高速9号深川線「木場」I.C.より約8分(約2.5km) |
| 駐車場 | 有 |