- サービス付き高齢者向け住宅
入居サポート費対象
リリィパワーズレジデンス高田東
駅から徒歩1分の好立地。お出掛けやお買物に大変便利。近くには早渕川沿いの遊歩道がありお散歩も出来ます。クリニックビルも近くにあり安心。
- 2025年8月4日
- 更新
他のおすすめの施設もご紹介可能です
- サービス種別
- サービス付き高齢者向け住宅(サ高住)
- 費用
- 初期費用
- 17.2万円〜24.4万円
- 月額費用
- 12.3万円〜16.9万円
- 住所
- 〒223-0065
神奈川県横浜市港北区高田東4-22-34地図
- 交通手段
- 電車の方:横浜市営地下鉄グリーンライン「高田」駅(3番出口)より徒歩1分 お車の方:第3京浜道路 都筑インターより5分
- 要介護度
- 自立、要支援1、要支援2、要介護1、要介護2、要介護3、要介護4、要介護5
- 運営法人
- 株式会社パワーズアンリミテッド
- 入居一時金0円
- キッチン付き居室
- 風呂付き居室
- トイレ付き居室
- 広い居室
- ナースコールあり
- ペット可
- 個室あり
- 自立可
事業所の特徴
おすすめポイント
- 24時間スタッフ常駐でお1人での生活の不安をサポート。生活相談も行います。
- 安否確認を毎朝10時にインターホンにて行います。
- 段差の少ないバリアフリー設計
リリィパワーズレジデンス高田東
資料請求とは:サイト非公開の正確な料金体系と空き状況を紙資料でじっくり確認できます。家族との比較検討に最適です。
見学申込とは:資料では分からない施設の雰囲気や職員の対応を直接確認できます。専門相談員への個別質問も可能です。
看護・医療体制
医療面の受け入れ
- 経管栄養法
要相談
- 在宅中心静脈栄養法
要相談
- 膀胱留置カテーテル
要相談
- 腎ろう・膀胱ろう
要相談
- 在宅酸素療法
要相談
- 人工呼吸療法
要相談
- 人工肛門
要相談
- 人工膀胱
要相談
介護面の受け入れ
- リハビリ
要相談
- 糖尿病・インスリン
要相談
- 人工透析
要相談
- カテーテル・尿バルーン
要相談
- ペースメーカー
要相談
- 誤嚥性肺炎
要相談
- 喘息・気管支炎
要相談
- アルツハイマー
要相談
- 脳血管性認知症
要相談
- ピック病
要相談
- レビー小体型認知症
要相談
- パーキンソン病
要相談
- 廃用症候群
要相談
- リウマチ・関節症
要相談
- 骨折・骨粗しょう症
要相談
- 脳梗塞・クモ膜下出血
要相談
- 心筋梗塞・狭心症
要相談
- がん・末期癌
要相談
- 人工呼吸器
要相談
料金プラン・入居条件
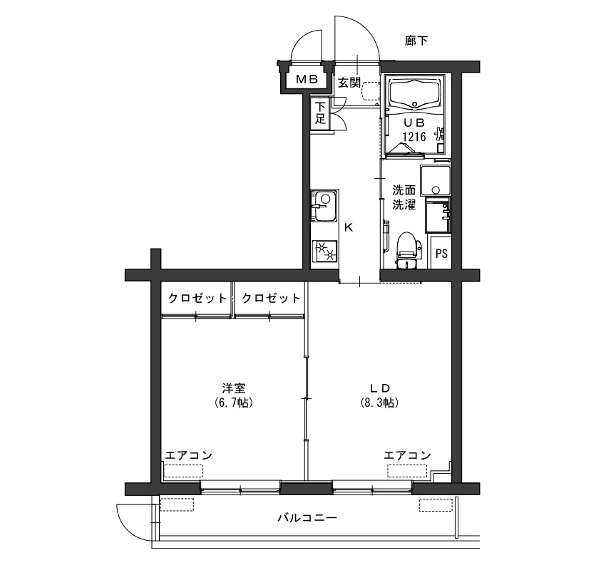
Aタイプ(1K)
- 初期費用
- 172,000円
- 月額費用
- 円
- 居室タイプ
- 個室
- 広さ
- 26.73㎡
- 契約方式
- 賃貸借方式
Bタイプ(2DK)
- 初期費用
- 244,000円
- 月額費用
- 円
- 居室タイプ
- 個室
- 広さ
- 43.97㎡
- 契約方式
- 賃貸借方式
Cタイプ(1LDK)
- 初期費用
- 240,000円
- 月額費用
- 円
- 居室タイプ
- 個室
- 広さ
- 40.37㎡
- 契約方式
- 賃貸借方式
入居条件
| 要介護度 | 自立、要支援1、要支援2、要介護1、要介護2、要介護3、要介護4、要介護5 |
|---|---|
| 認知症 | 要相談 |
| 生活保護 | 不可 |
| 身元保証人なし | 要相談 |
| 入居年齢相談可 | 要相談 |
リリィパワーズレジデンス高田東
資料請求とは:サイト非公開の正確な料金体系と空き状況を紙資料でじっくり確認できます。家族との比較検討に最適です。
見学申込とは:資料では分からない施設の雰囲気や職員の対応を直接確認できます。専門相談員への個別質問も可能です。
事業所概要
事業所詳細
| 事業所名称 | リリィパワーズレジデンス高田東 |
|---|---|
| サービス種別 | サービス付き高齢者向け住宅(サ高住) |
| 定員 | 34名 |
| 住宅戸数 | 27戸 |
| 開設年月日 | 2012年11月1日 |
| 居室設備 | 玄関、キッチン、トイレ、浴室、エアコン、収納、緊急押しボタン、バルコニー、カラーモニター付きインターホン |
| 共用設備 | エントランス、多目的室 |
会社概要
| 法人名称 | 株式会社パワーズアンリミテッド |
|---|---|
| 法人名称(フリガナ) | パワーズアンリミテッド |
| 法人住所 | 〒162-0066 東京都新宿区市谷台町8番8号 |